920 286 477 /\ 606 71 00 96 comercial@grupocnmonteros.es

5. Pisos de 1 Planta de 66 m/2 y 76 m/2 construidos.

Disponen de recibidor, Salón, Cocina amueblada con muebles bajos, 2 dormitorios, y 1 C.Baño completo.
Ventanas de aluminio con puente térmico, color imitación a madera, cristal climalit.
Puertas interiores de madera de roble con herrajes inox.
Armarios empotrados.
Calefacción.
Pavimento y azulejo a elegir.
Patio en fachada posterior y plaza de garaje.

Pisos  Duplex de 120 m2  y de 130 m2 construidos

Acabados de 1ª Calidad

Garantía- Calidad- Precio

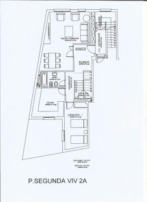
Duplex 2-A con Recibidor, cocina dotada con muebles bajos, Salón, 1 Dormitorio, 1 C.Baño completo con plato ducha.
En Plt. Bajo Cubierta : 3 Dormitorios y 1 C..Baño con plato ducha.
Ventanas aluminio con puente térmico, color imitación a madera, cristal climalit.
Puertas interiores de madera de roble con herrajes inox.
Armarios empotrados, Calefacción, Azulejo y pavimento a elegir.
Con Plaza de Garaje.

Duplex 2º A Distribución de Plt. bajo cubierta Cruz del Pradillo Navaluenga